Een voorziening voor de hoge nood van passanten

Vlak voor deze Boekenweek verscheen Het boek Ont van Anton Valens. In deze "Grote Groninger Roman" (NRC) werkt de hoofdpersoon, Isebrand Schut, als "gastheer" in de ondergrondse toiletinrichting op de Grote Markt in Groningen.

Voor ons vormde Valens' boek aanleiding om eens te kijken naar de geschiedenis van deze voorziening.

De hereningang van "De Ondergrondse". Foto Harry Perton, maart 2012
De hereningang van "De Ondergrondse". Foto Harry Perton, maart 2012

Valens duidt de toiletvoorziening aan als "metro" en ook wel als "metrohalte".

De bovengrondse vormgeving doet hem denken aan een "art deco-metrobaken in Parijs".

Dat is op zich geen originele waarneming, want ook Herma Hekkema vond in haar biografie van S.J. Bouma (1992) de architectuur al lijken "op de ingang van een ondergrondse".

Ondergrondse, dat is tevens de term die valt in een stadsrubriek in het Nieuwsblad van het Noorden van 21 juli 1960.

En zoals een gepensioneerde vrijwilliger bij de Groninger Archieven verklaart, dat was bovendien de term waarmee zijn vader zaliger de voorziening aanduidde, een betiteling die volgens hem ook gangbaar was in de Groninger volksmond.

Bouw

Bouw

Zoals Valens aangeeft, was S.J. Bouma de ontwerper van de toiletinrichting. Anders dan opzichter Ebel Formsma in Valens' boek beweert, is zij echter geen 120 jaar, maar slechts 85 jaar oud.

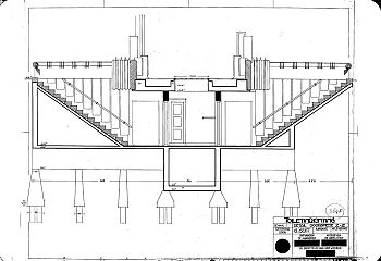
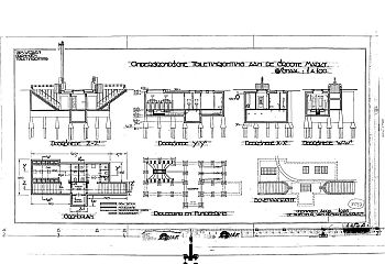
Aanvankelijk wilde men een retirade bij de Martinitoren vervangen door een bovengronds toiletgebouw, maar dat zou volgens de gemeenteraad teveel in het zicht komen te staan en daarom koos men voor een ondergrondse oplossing. Deze kreeg gescheiden afdelingen voor mannen en vrouwen met een ruimte ertussen voor de toezichthouders. Op de vloeren kwamen rode tegels en de beide trappen kregen granieten balustrades met krullend siersmeedwerk. Een en ander past in de vormgevingstradities van Art deco en Amsterdamse school.

Opmerkelijk is, dat het bouwwerk niet als afzonderlijk punt op de agenda van de raad stond, maar een onderdeel was van een herinrichting die alle tramstraten tussen de Grote Markt en Helpman omvatte.

De veelomvattendheid van het voorstel vormde ook hèt kritiekpunt, bij de raadsbespreking op 22 februari 1926. Inhoudelijk waren er geen aanmerkingen op de toiletvoorziening en de raad nam het hele plan zonder stemming aan.

Vanaf eind april lag het bestek bij Gemeentewerken ter inzage en op 17 mei vond in het Raadhuis de aanbesteding plaats.

De laagste inschrijver bleek J.H. Sluiter, een aannemer uit Zwolle, die inschreef voor een bedrag van 28.545 gulden. Omdat hij al "tot volle tevredenheid" een school in de Oosterparkwijk bouwde, gunde de gemeente hem ook deze opdracht.

Op 18 september was het grove werk al gereed, want Sluiter verkocht toen een damwand en de directiekeet. Op zaterdag 6 november leverden Groningse onderaannemers al het sanitair op. Uiteindelijk was de gemeente, denkelijk dankzij besparingen, zelfs nog 45 gulden minder dan de aanneemsom kwijt.

Nog op dezelfde dag als de gereedmelding plaatsvond, stelde ze het werk open voor het publiek.

Personeel

Personeel

Van mannelijk toezicht, zoals in de roman van Valens, is in de bronnen van voor 1972 geen sprake.

Meteen al bij de opening lag "de zorg voor de bediening der closets" in handen van twee bewaaksters die elkaar op vastgestelde uren aflosten. Zij kregen een instructie mee.

In de eerste week moesten deze bewaaksters meteen al beide tegelijk aan het werk, "in verband met het enorm drukke bezoek" van vooral "nieuwsgierige en opgeschoten jongens en meisjes, welke meer kwaad dan goed aan de inrichting doen".

In 1930 bleken deze bewaaksters juffrouw Nanninga en juffrouw Prummel te heten. Later kwam er nog een juffrouw Weidenaar bij. Net als in de openingsweek, draaiden zij gedurende kermissen hun diensten met een dubbele bezetting.

Ook in 1951 en rond 1970 bestond het personeelsbestand nog uit drie bewaaksters.

In 1954 ging het om de dames Notebomer, De Vries Tak en Jansens, die elk 88 cent per uur verdienden, of ruim 30 gulden per week.

Eind jaren zestig, toen het "zeer moeilijk" bleek "om voor dit werk dames te vinden", waren de verdiensten inmiddels opgetrokken tot bijna 4 gulden per uur. Tussen het kaartjes verkopen en de lichte schoonmaakwerkzaamheden door, hielden de dames zich met allerlei handwerkjes bezig, waarbij ze in de jaren vijftig luisterden naar de draadomroep.

De dames waren in dienst van de Reinigingsdienst, terwijl het grovere schoonmaakwerk eind jaren dertig werd gedaan door losse werklui van Gemeentewerken of Openbare Werken.

De directeur van de Reinigingsdienst vond in 1939 de kwaliteit van hun werk ver onder de maat. Op zijn verzoek nam Bolomey, een opzichter van Gemeentewerken, poolshoogte, maar die bleek het helemaal niet met hem eens.

Zoals de directeur aan zijn ambtgenoot van Gemeentewerken berichtte:

"De heer Bolomey (…) had over de hem door mij aangetoonde, niet schoon gemaakte en niet behoorlijk verzorgde punten een geheel afwijkende meening en stelde vast dat de inrichting er zeer behoorlijk uitzag; de heer Bolomey was zelfs van oordeel dat de inrichting als een 'troetelkindje' door Gemeentewerken behandeld werd en vond de klacht dan ook geheel en al ongegrond."

Beide heren verklaarden dat ze geen woord meer met elkaar wilden wisselen, en omdat de directeur van Gemeentewerken zijn opzichter dekte, ontaardde het geval in een vete tussen beide diensten die nog geruime tijd zou duren.

Zo kregen de schoonmakers van Gemeentewerken in 1940 de schuld van een bevriezing. Pas na de oorlog werd de conflictstof definitief opgeruimd, toen Openbare Werken van deze taak afwilde en de Reinigingsdienst het algehele beheer van de ondergrondse toiletinrichting in handen kreeg.

Vanaf het begin was de voorziening open van 8 uur 's ochtends tot 11 uur 's avonds. Pas toen de gemeente in 1969 problemen ondervond bij de vervulling van twee vacatures voor bewaaksters, werden de tijden beperkt.

De voorziening ging toen op zondag dicht, terwijl ze op werkdagen pas om 9 uur openging en al om 21 uur sloot. Het sluitingstijdstip werd in 1970 zelfs vervroegd tot 19 uur, omdat er 's avonds bijna geen gebruik van de urinoirs en toiletten werd gemaakt.

Tarieven

Tarieven

Vanaf het begin was het gebruik van de urinoirs op de mannen-afdeling gratis, terwijl het gebruik van de afsluitbare wc's een stuiver of een dubbeltje kostte, iets wat op de deuren werd aangegeven.

Het verschil tussen deze tarieven zat hem in de al dan niet aanwezige wastafel, spiegel, handdoek en zeep. Aanvankelijk waren er ook nog kosteloze wc's, maar daar werd al na een week een eind aan gemaakt.

De ervaringen daarmee waren namelijk "allerbedroevendst slecht". "Door het vandalisme der bezoekers", aldus de directeur van de Reinigingsdienst,

"…werd deze gelegenheid al spoedig gedegradeerd tot een luguber object, zonder waterspoeling, waarvan een ieder uit de nettere arbeidersklasse zich geneert gebruik te maken. Tegen deze vernielzucht en houding van straatboefjes en gedegenereerde lieden is niets bestand en niets tegen te doen, als….. dergelijke inrichtingen gewoonweg op te heffen of onder toezicht te stellen tegen geringe betaling."

Zelfs het gratis damestoilet bleek een grote vergissing. Door "de enorme toeloop" en "het deponeren van ongure kleedingstukken" werd deze wc "op een meer dan ergerlijke wijze" bevuild.

Op advies van de directeur voerden B&W daarom betaling voor alle waterclosets in, ook de wc's die eerst gratis waren geweest. Alleen in uitzonderlijke gevallen mocht een bewaakster afzien van het entreegeld voor vrouwen. Want als men de toegang geheel vrijliet, zou zo'n wc zich "binnen afzienbare tijd" ontwikkelen tot een "obscure gelegenheid voor allerlei slag van meisjes en vrouwen, allèèn niet voor die uit de nettere standen, hetzij arbeiders- of burgervrouwen".

Bij het opstellen van de gemeentebegroting voor 1952 kwam het stadsbestuur op het idee om ook voor de urinoirs een stuiver te vragen. De directeur van de Reinigingsdienst ontraadde dit. In bijna alle grote steden was het gebruik van de urinoirs gratis, bovendien vreesde hij, zonder dat woord te noemen, wildplasserij:


"Bij invoering van een tarief zal het gebruik in zeer belangrijke mate dalen. Het geringe voordeel (…) weegt niet op tegen het grote ongerief dat de bevolking zou ondervinden, terwijl allerlei misbruiken zouden ontstaan, waardoor allerminst de hygiëne is gediend."


In 1961 kwam een tariefsverhoging van een stuiver voor de afsluitbare wc's ter sprake. De directeur van de Reinigingsdienst vond dat de tarieven na 35 jaar "wel enigszins kunnen worden aangepast aan de tegenwoordige tijd". Maar ondanks de oplopende exploitatietekorten liet het stadsbestuur het bij het oude tot 1966, toen de stuiver verhoging er toch kwam. Een jaar later kwamen er wastafels en spiegels in alle wc's, waarvoor een eenheidsstarief van 15 cent werd ingevoerd. Dit nog steeds alleszins bescheiden tarief verhoogde men in 1971 tot een kwartje.

Gebruikers

Gebruikers

Voorman Ebel Formsma betreurt het in de roman van Valens, dat er geen gastenboek of fotogalerij van beroemde gebruikers van de ondergrondse toiletinrichting is. Inderdaad zijn er geen namen van klanten overgeleverd.

Wel zijn er wat cijfers over het bezoek aan de afsluitbare toiletten . Zo verkochten de bewaaksters in 1946 nog 67.103 kaartjes van een dubbeltje en 150.316 kaartjes van een stuiver, iets wat een jaar later fors daalde tot respectievelijk 52.813 en 121.368.

Begin jaren zestig brachten de kaartjes al met al zo'n 12.000 gulden per jaar op, wat, als we rekening houden met de eerdere verdeelsleutel van tweederde stuivers en eenderde dubbeltjes, neerkwam op een bezoek van ca. 200.000 personen aan de afgesloten toiletten.

Tegelijkertijd stegen door de loongolf echter de kosten tot 24.000 gulden per jaar.

Overigens hebben we het hier waarschijnlijk wel over de topperiode, want in 1971 is er sprake van steeds dalende inkomsten, waarbij je je moet bedenken dat veel mensen wellicht gebruik ging maken van toiletvoorzieningen in warenhuizen en een langzamerhand opbloeiende horeca.

In elk geval is een privatisering van de toiletinrichting, zoals die enige malen in het boek van Valens ter sprake komt, nooit doorgevoerd. Zowel in 1954 als in 1971 werd geconstateerd dat er teveel geld bij moest om interessant te zijn voor een pachter. Navraag bij een van de huidige bewaaksters leert ook, dat zij nog steeds in dienst is van de gemeente.

Mankementen

Mankementen

Een rode draad in het boek van Valens vormen de voortdurend kapotte handdoekautomaten.

Daarvan blijkt niets in de archivalia, maar waarschijnlijk komt dat doordat zulke automaten dateren van na 1972, het laatste jaar dat onze archivalia bestrijken.

Maar in onze bronnen is er wel sprake van andere mankementen, die daar dan andere rode draden vormen, minstens zo pregnant als die bij Valens.

Zo bevroor de zaak nogal eens in de strenge winters van voor de oorlog.

Voor het eerst gebeurde dat in december 1927 – ondanks het afsluiten en leegmaken van leidingen en reservoirs moest toen herhaaldelijk de inrichting worden gesloten tot alles met benzinebouten, heet water en pekel gangbaar was gemaakt.

Daarom stelde de Reinigingsdienst ook een nachtwacht aan, "om gedurig de doorspoeling gaande te houden". Op verzoek isoleerde Gemeentewerken de leidingen, maar de winter van 1928/ 1929 was zo streng dat zelfs dat niet hielp, en in januari 1940 bleek de zaak opnieuw bevroren.

Een terugkerend ongemak gaf vooral de pomp die de inhoud van de beerput naar het hoger gelegen hoofdriool moest pompen.

Deze pomp bleek vrij kort na de ingebruikneming, eind 1926, al "geregeld" te haperen, met dien verstande dat hij "niet in staat bleek de grovere bestanddeelen uit den beerput te verwerken". Daarom moest de Reinigingsdienst zo'n drie maal per jaar de beerput (met emmertjes of tonnetjes) laten "leegdragen", wat dan 's nachts gebeurde.

Op een klacht bracht de leverancier van de pomp, machinefabriek Jaffa, een rooster aan onder de zuigbuis, zodat de "grovere bestanddeelen" in de beerput achter zouden blijven, maar ook dat rooster verstopte. Voor de Reinigingsdienst reden om Jaffa te dwingen tot levering van een nieuwe pomp – in het leveringscontract stond namelijk uitdrukkelijk, dat de pomp ook geschikt moest zijn voor de "meer plastische" substanties.

Bij deze vervanging wilde Jaffa het regelmatige functioneren echter niet garanderen "indien, gelijk thans soms het geval is, grove verontreinigingen als stukken hout, kousen e.d. in den beerput worden aangetroffen".

Hoewel de nieuwe pomp zeker verbetering bracht, moest de put soms toch nog handmatig worden schoongemaakt. Dat gebeurde overdag. Bij zo'n schoonmaakbeurt konden de bewaaksters van de stank bijna niet in hun kamertje blijven.

In 1948 was de pomp in twee weken tijd drie maal verstopt "door verbandstoffen uit de damestoiletten". Steeds moest hij geheel uit elkaar worden gehaald.

De Reinigingsdienst stelde voor om een roestvrijstalen zeef of korf tussen de afvoer van de damestoiletten en de beerkelder aan te brengen, welke dan "verbandstoffen, kousen, portemonnaies, directoires e.d." zou afvangen, maar volgens Openbare Werken was dat niet mogelijk, doordat de uitmondingen van de wc's praktisch onbereikbaar waren.

Het tegenvoorstel om afvalemmertjes te plaatsen, wat elders in openbare gebouwen soelaas bood, zal wel zijn aangenomen.

In 1953 bleek de pomp weer eens defect.

Deze werd een paar jaar later vervangen bij een groot onderhoudsbeurt, die onder meer ook het vlak kappen van de treden van de herentrap, het ontroesten van alle ijzeren raamwerken en de verbetering van de ventilatie omvatte.

Vooral de bewaaksters hadden in hun hok last van onfrisse lucht, vandaar dat er een geheel nieuwe luchtverversingsinstallatie kwam.

Gek genoeg was er extern weinig overlast.

In 1967 klaagde de naast de toiletinrichting gelegen textielfirma Rottinghuis echter over stank.

Zij was van mening "dat de huidige situatie de grenzen van het toelaatbare ruimschoots overschrijdt".

Hoewel de gemeente er volgens Rottinghuis alles aan deed om de overlast te beperken, gaf dit geen verbetering.

Daarom vroeg het winkelbedrijf medio 1968 om sluiting van de ondergrondse toiletten, waarbij ze te kennen gaf "dat dit soort gelegenheden niet in een Modern Stadsbeeld thuishoren".

De brief van Rottinghuis vormde voor de gemeente reden, om andermaal een nieuwe pomp aan te schaffen.

Met de vervanging was een bedrag van 9000 gulden gemoeid, zo'n driekwart van het bedrag dat begin jaren zestig nog door kaartverkoop binnenkwam.

 

Dit verhaal kwam tot stand dankzij bijdragen van Jona van Keulen (idee), Thijs Boekema (archiefonderzoek), Dries Scheffer (beeldresearch) en Harry Perton (tekst). RHC Groninger Archieven, maart 2012.

Bronnen:

Literatuur:
- Anton Valens, Het boek ont (Amsterdam 2012)
- Centrum voor Architectuur en Stedebouw, Bouwen & bewaren: S.J. Bouma architect (1899-1959) (Groningen 1992)
- Herma Hekkema, S.J. Bouma 1899-1959 (Groningen 1992)

Archivalia:
- Bouwvergunningen gemeente Groningen (toegang 1842), inv. nr. 104 - dossier Bouw ondergrondsche toiletinrichting Grote Markt (1924-1962)
-Archief Reinigingsdienst (toegang `1475), de dossiers 1215, 1216 en 1219 m.b.t. de ondergrondse toiletinrichting aan de Grote Markt (1908-1972)